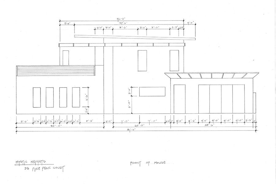
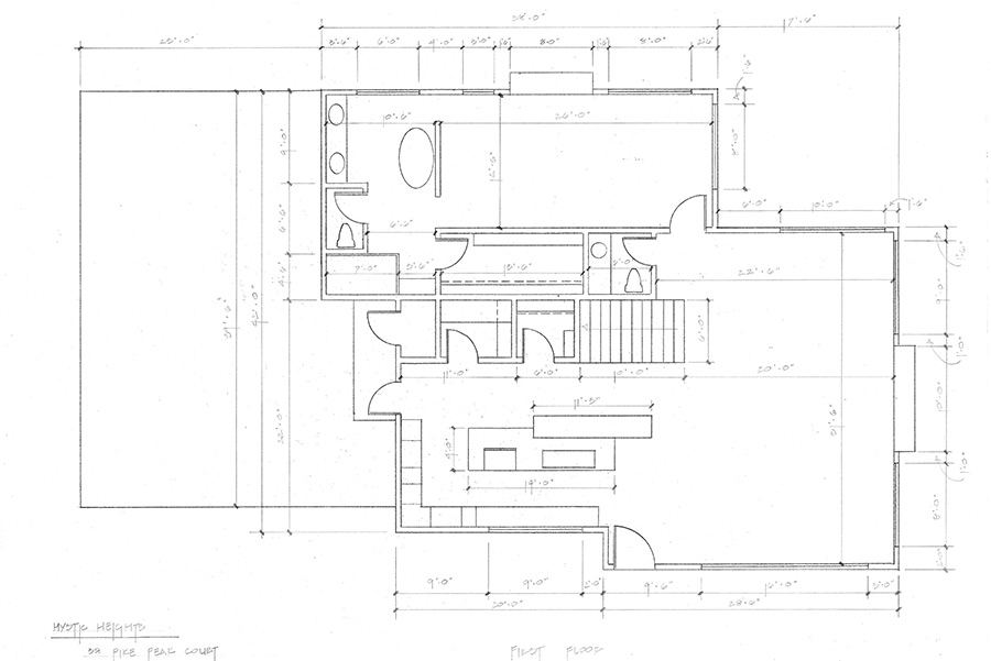
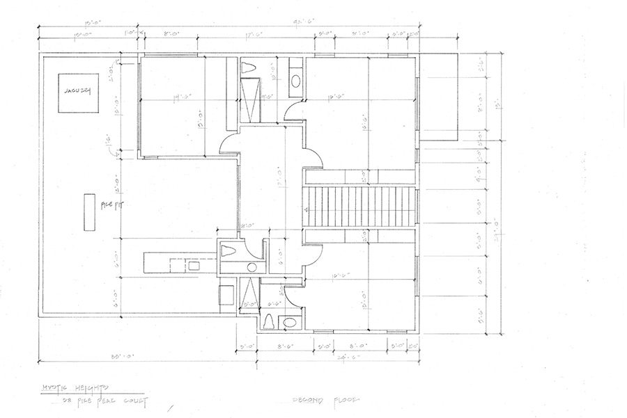
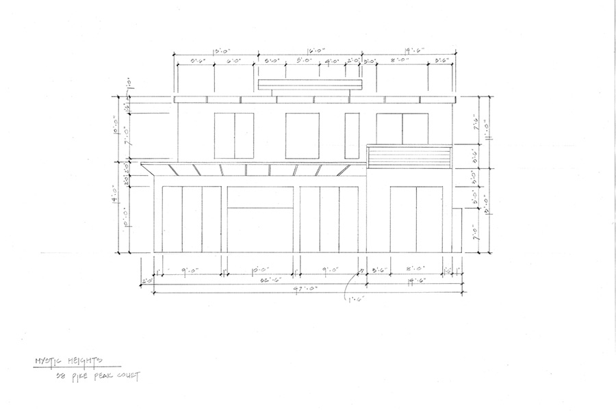
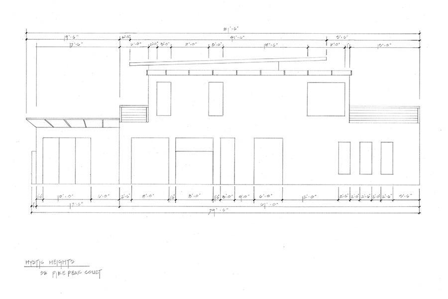
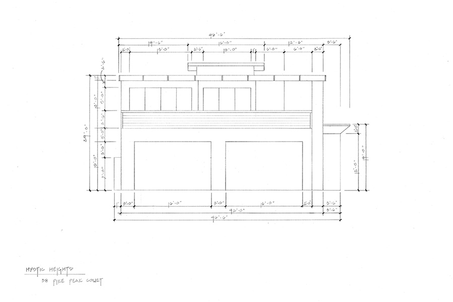
Current Projects
109 Summit Way
Located in the exclusive Mystic Heights gated community, nestled in the heart of Sedona. This ultramodern 3,871 sq. ft. home offers sweeping, dramatic, and panoramic views of Cathedral Rock and the surrounding mountains.





















